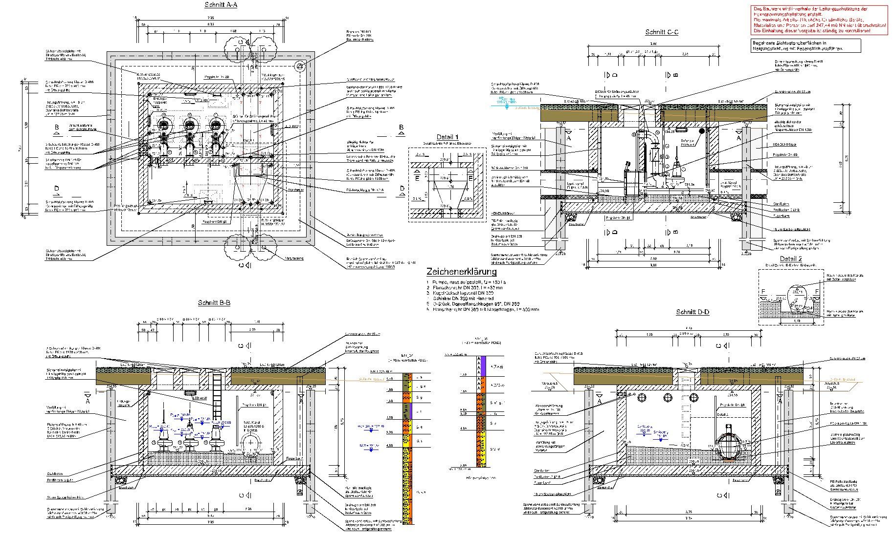
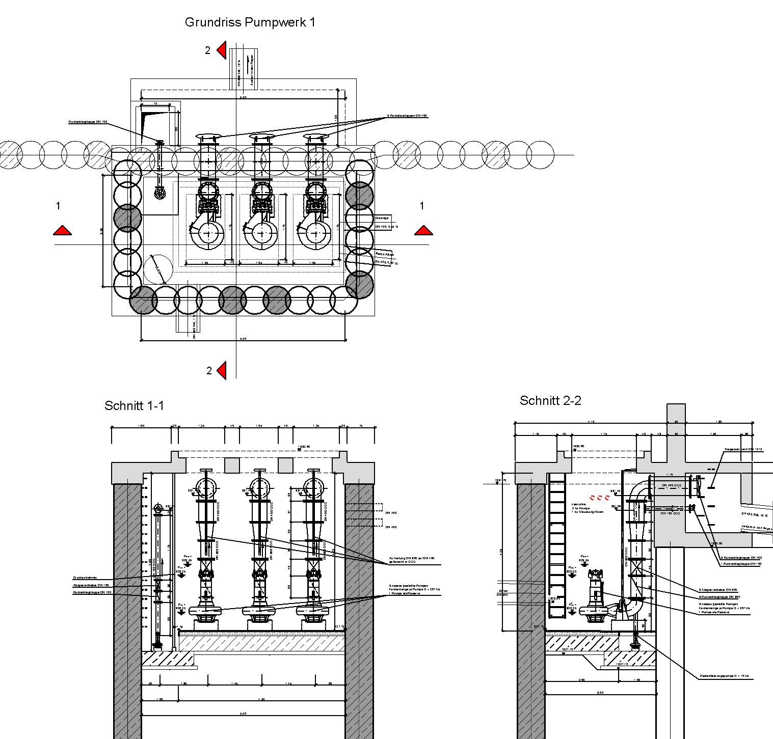
Hochwasserschutzanlagen
Für Hochwasserschutzanlagen projektieren wir die komplette elektrotechnische Ausrüstung. Der Umfang umfasst in der Regel:
- Niederspannungsschaltanlage/n
- Netzersatzanlage
- Meß-, Steuer,- u. Regeltechnik
- SPS-Steuerung
- Prozeßleittechnik / Fernwirktechnik
- Gebäudeinstallation
- Verkabelung
| Projekt | Fertigst | Wert | Auftraggeber |
|---|---|---|---|
| HWS Rückersdorf | 2026 | 350 T€ | IB Lindschulte |
| HWS Ansbach | 2027 | 750 T€ | IB Lindschulte |
| HWS Hallstadt – 6 Pumpwerke | 2024 | 400 T€ | IB Lindschulte |
| HWS Kemmern – 5 Pumpwerke / NEA | 2025 | 750 T€ | IB Lindschulte |
| HWS Ruderatshofen - 1 Pumpwerk | 2023 | 50 T€ | IB Lindschulte |
| HWS Reiterhof Kreilhof - 2 Pumpwerk | 2024 | 50 T€ | IB Lindschulte |
| HWS Mühldorf – 2 Pumpwerke | 2021 | 350 T€ | WWA Rosenheim |
| HWS Metten | 2023 | 150 T€ | IB Lindschulte |
| HWS Regensburg – Abschnitt Q | 2022 | 150 T€ | IB Obermeyer |
| HWS Regensburg – Abschnitt L | 2020 | 130 T€ | IB Obermeyer |
| HWS Regensburg – Bedelgasse | 2015 | 350 T€ | IB Lindschulte |
| HWS Deggendorf – Hauptpumpwerk | 2016 | 250 T€ | Wipfler-Plan |
| HWS Thierhaupten | 2019 | 100 T€ | IB Lindschulte |
| HWS Cham – PW Kongresszentrum | 2015 | 60 T€ | IB Lindschulte |
| HWS Regensburg – Abschnitt D / Bedelgasse | 2015 | 250 T€ | IB Lindschulte |
| HWS Vohburg – Pumpwerke Ost & West | 2015 | 350 T€ | IB Lindschulte |
| HW Sinzing - Regensburg | 2012 | 250 T€ | IB Lindschulte |
| HW PW Affing | 2009 | 25 T€ | IB Endress |
| HWS Regensburg – OT Schwabelweiss | 2011 | 100 T€ | IB Lindschulte |
| HW PW E-ON - Wasserburg | 2010 | 150 T€ | IB Arnold |








